Ga direct naar de hoofdinhoud
Villa-costablanca.be
Uw Vlaams bouwbedrijf in de Costa Blanca
Villa-costablanca.be
Uw Vlaams bouwbedrijf in de Costa Blanca
  • Home
  • Projecten
    • Villa in Quesada met zicht op de golf
    • Villa, werken gestart
    • Villa Zaïda Calpe
  • Villa's
    • Barcelona
      • Barcelona 3D interactief
    • Denia
      • Denia 3D interactief 135m²
      • Denia 3D interactief 115m²
    • Malaga
      • Malaga 3D interactief
    • Moderna
      • Moderna 3D interactief "Industrial look"
    • Villa Altea
    • Eva
    • Guapa
    • Paris
    • Valencia
    • Tenerife
    • Moraira luxe
    • Villa Ibiza I
    • Villa Elda
    • Villa Ibi
    • Girona
    • Sevilla
    • Pamplona
    • Gran Canaria
    • Marbella
    • Mallorca
    • B&B
    • Castellet
      • Castellet 3D interactief
    • Cordoba
      • Cordoba 3D interactief plan 1
      • Cordoba 3D interactief plan 2
    • Badajoz
      • Badajoz 3D interactief
    • Menta
      • Villa Menta 3D interactief
      • Villa Menta 3D interactief - B
    • Formentera
    • Castellon
    • Parma
    • Venecia
    • Traditionele villa's
    • Villa's met paardenstallen
      • Stalgebouw
      • Paardenomheining
      • Rijpiste
      • Paardenvilla
        • Hacienda met paarden
      • Wasplaats - mestbak
      • Machines
      • Hooiopslag
  • Werven
    • Villajojosa
    • Alfas del Pi
    • Villa in Moraira
    • Moraira
    • Calpe Empedrola - A
    • Calpe Empedrola - B
    • Aspe B&B en camping
    • Altea/La Nucia/Benimantell
      • Altea - Villa (aan de golf)
      • Altea 3
      • Benimantell pagina 2
        • Benimantell pagina 1
      • Altea 2
      • La Nucia klasse villa
    • Salinas/Sax
      • Villa op mega grond in Salinas
      • Salinas - Hacienda
      • Salinas 11
      • Sax - Villa Malaga pagina 2
        • Sax - Villa Malaga pagina 1
          • Villa Malaga 90m² 3D
      • Salinas - Villa 6
      • Salinas - Villa "Moderna" pagina 3
        • Salinas - Villa "Moderna" pagina 2
          • Salinas - Villa "Moderna" pagina 1
      • Salinas - Villa "Malaga" pagina 2
        • Bodemsondering en voorbereidingen
      • Salinas - Villa "Malaga" pagina 1
      • Salinas villa "Casa Blanca" pagina 2
        • Salinas -Villa "Casa Blanca" pagina 1
      • Salinas -Villa "La Isla Bonita"
    • Calpe
      • Calpe - Villa-A
      • Calpe - Villa "Eva" pagina 2
        • Calpe - Villa "Eva" pagina 1
      • Calpe Alicante pagina 2
        • Calpe - Villa "Alicante"
        • Alicante
        • Villa 1 in opbouw in Calpe model Alicante
      • Calpe - Villa "paris"
      • Calpe - Villa "Casanova"
      • Calpe - Villa "Moderna" pagina 4
        • Calpe - Villa "Moderna" pagina 3
          • Calpe - Villa "Moderna" pagina 2
            • Calpe - Villa "Moderna" pagina 1
    • San Fulgencio
    • Javea/Benitachel
      • Benitachell - Villa "Altea" pagina 2
        • Benitachell - Villa "Altea" pagina 1
      • Benitachell - villa "EVA" pagina 3
        • Benitachell - villa "EVA" pagina 2
          • Benitachell - Villa "Eva" pagina 1
      • Javea pagina 2
        • Javea pagina 1
    • Aspe/Monovar/Pinoso
      • Pinoso Hills 1
      • Aspe - Villa "Ibiza" pagina 2
        • Aspe - Villa "Ibiza" pagina 1
      • Monovar - villa "Badajoz" pagina 2
        • Monovar - villa "Badajoz" pagina 1
      • Pinoso Hills 2 model Malaga
    • Busot
      • Busot villa Alicante pagina 4
        • Busot - Villa "Alicante" pagina 3
          • Busot - Villa "Alicante" pagina 2
            • Busot - Villa "Alicante" pagina 1
      • Busot "Lumianba" pagina 6
        • Busot "Lumianba" pagina 5
        • Busot - Villa "Lumianba" pagina 4
          • Busot - Villa "Lumianba" pagina 3
            • Busot - Villa "Lumianba" pagina 2
              • Busot - Villa "Lumianba" pagina 1
      • Busot - Villa "Malaga" pagina 3
        • Busot - Villa "Malaga" pagina 2
          • Busot - Villa "Malaga" pagina 1
    • Callossa d'en Saria
      • B&B in Callossa d'en Saria
      • Villa's in Callossa d'en Saria 2
    • Beniarbeig villa "Malaga pagina 2
      • Beniarbeig - Villa "Malaga" pagina 1
    • Foto's villa's Costa Blanca
    • Villa
  • Renovatiewerken
    • Renovatie Villa in Murla
    • Renovatie villa Moraira
    • Renovatie in Polop
    • Ruwbouw afwerken voor koffiebar
    • Renovatie studio in Benissa
    • Renovatie villa Alfaz del Pi
    • Renovatie villa Quesada
    • Omgevingswerken Orcheta
    • Nieuwe badkamer Torrevieja
    • Renovatie keuken Ondara
    • Renovatie 2 badkamers in Polop
    • Zwembad in microcement
    • Zwembad in microcement 2
    • Waterdicht maken van terras in Polop
    • Nieuwe badkamer maken Benissa
    • Renovatie badkamer
    • Renovatie penthouse Torrevieja
    • Renovatie kantoor
    • Renovatie villa San Vicente del Raspeig
    • Renovatie villa - Benissa
    • Renovatie villa - Calpe 15/3/23
    • Renovatie zwembad Busot
    • Renovatie zwembad San Fulgencio
    • Renovatie badkamers en keuken 2
    • Renovatie badkamers en keuken
    • Renovatie villa - Calpe
    • Renovatie villa - Zaragossa
    • Renovatie villa - Calpe
    • Renovatie villa - Calpe
    • Renovatie gevel kantoorcomplex - België
    • Renovatie kantoor/labo's - België
    • Renovatie keuken en badkamer
    • Renovatie kelder
    • Renovatie villa
    • Renovatie terrassen GA
    • Renovatie waterput
    • Renovatie badkamer Benijofar
    • Plaatsen schuur
    • Inrichting winkel
    • Renovatie hotel
    • Renovatie appartement Calpe
    • Renovatie keuken Salinas
    • Renovatie keukens
  • Contact
  • Info
    • Nieuwe villa bouwen
    • Renovatiewerken, hoe en wat?
    • Waarom villa-costablanca.be ?
    • Grondbank
      • El Campello
      • Salinas
      • Pinoso
        • Urbanisatie Pinoso Hills
      • Moraira/Benissa
      • Calpe
      • Altea
      • Polop
      • Busot
      • Benitachell
      • Sax
      • La Romana
      • Monovar
      • Hondon de los Frailes
      • Jumilla
      • Kustlocaties
    • Keukens
    • Showrooms
      • Showvilla pagina 6
        • Showvilla pagina 5
          • Showvilla pagina 4
            • Showvilla pagina 3
              • Showvilla pagina 2
                • Showvilla pagina 1
      • Deuren en ramen
      • Vloeren en tegels
      • Marmer en graniet
      • Elektrisch materiaal
      • Pelletkachels
    • Badkamers
    • Materialen-Werkwijze
      • Wat is inbegrepen in de villa ?
        • Poort
      • Bouwwijze/constructiekeuze
        • Ytong
        • Schüco ramen
      • Geotechnische studie
      • Afwerkingsmogelijkheden
      • Aanpassingsmogelijkheden villa's
      • Architect/binnenhuisarchitect
      • Vlaamse layout
      • Printbeton/kunstgras
      • Zwembad
    • Historiek
      • Kantoor/magazijn/showroom Alicante
    • Privacy
  • Nieuws
  1. Home
  2. »Villa's
  3. »Denia

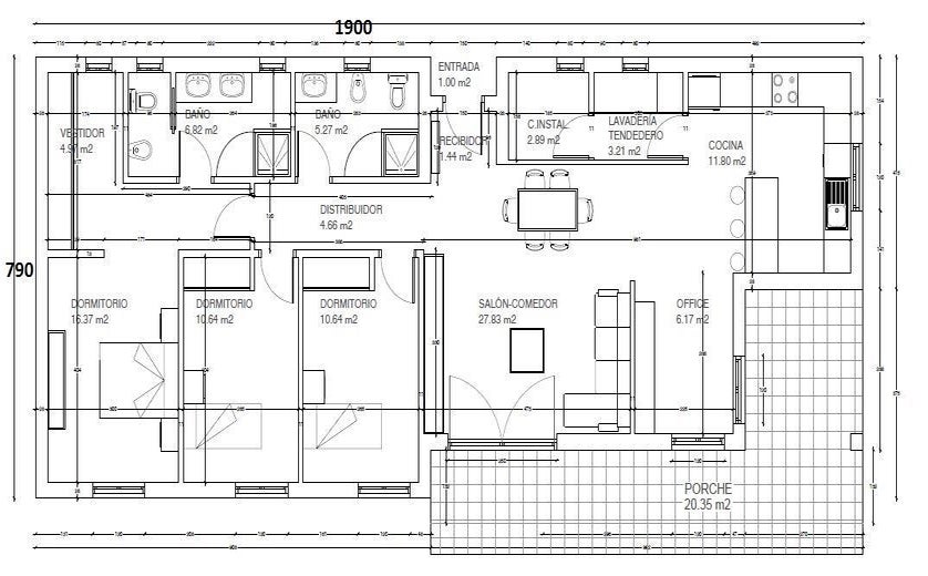
Enkele plannen van het model "Denia" met 3(135m²) en 2(115m²) slaapkamers

GuntherenCarine6.jpg
GuntherenCarineinterieur.jpg
GuntherenCarine8.jpg
GuntherenCarine4.jpg
GuntherenCarine5.jpg
GuntherenCarine7.jpg
GuntherenCarine2.png
GuntherenCarineinterieur2.jpg
GuntherenCarine1.png
GuntherenCarine3.png
Rony2Dmetlogo.jpg
Rony3D-A.jpg
Rony3D.png
Rony2d2slpk.jpg
Rony3D2slpk.jpg
ronyvooraan.jpg
ronynw.jpg
Ronyachteraan.jpg
  • (1 / 1)
  • 1
WhatsAppImage2019-10-21at1606332-4.jpeg
WhatsAppImage2019-10-21at160631-2.jpeg
WhatsAppImage2019-10-21at1606322-2.jpeg
WhatsAppImage2019-10-21at160632-2.jpeg
WhatsAppImage2019-10-21at160616-2.jpeg
WhatsAppImage2019-10-21at1606331-2.jpeg
WhatsAppImage2019-10-21at160633-2.jpeg
WhatsAppImage2019-10-21at1606341-2.jpeg
WhatsAppImage2019-10-21at1606342-2.jpeg
WhatsAppImage2019-10-21at160634-2.jpeg
WhatsAppImage2019-10-21at1606321-5.jpeg
  • (1 / 1)
  • 1
"Denia" 3D interactief 135m² 3 slpk.
"Denia" 3D interactief 115m² 2 slpk.
Rating: 3.8240384615385 sterren
1040 stemmen Je hebt al gestemd.
Facebook Instagram WhatsApp
© 2016 - 2026 Villa-costablanca.be